150 Victoria Avenue North, Hamilton      
 

Artist Rendition





150 Victoria Avenue North, Hamilton





150 Victoria Avenue North, Hamilton

Above Grade Square Footage: 1480 sqft (137.49m²)
Below Grade Finished Space: 650 sqft (60.39m²)

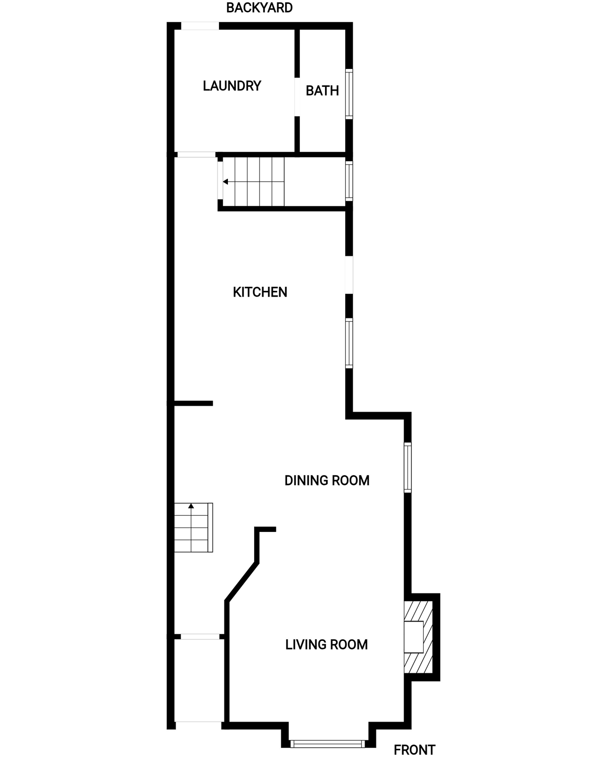
Main Level
Living Room 12'8 x 11'6 (3.86m x 3.51m)
Dining Room 15'9 x 10' (4.80m x 3.05m)
Kitchen 14' x 11'9 (4.27m x 3.58m)
Foyer 12'8 x 5' (3.86m x 1.52m)
Laundry 8'9 x 8'4 (2.67m x 2.54m)
Powder Room 2P 8' x 3'3 (2.44m x 0.99m)

Upper Level
Primary Bedroom 15'9 x 10'6 (4.80m x 3.20m)
Bedroom 11'9 x 9'3 (3.58m x 2.82m)
Bedroom 10'7 x 9'6 (3.23m x 2.90m)
Bathroom 4P 7'8 x 5'9 (2.34m x 1.75m)
Landing 20' x 5'10 (6.10m x 1.78m)

Lower Level
Rec Room 19'10 x 10'3 (6.05m x 3.12m)
Office 9'8 x 7'2 (2.95m x 2.18m)
Utility 11' x 6'10 (3.35m x 2.08m)
Laundry 11'4 x 6' (3.45m x 1.83m)
RI Bathroom 7'9 x 7'4 (2.36m x 2.24m)
* All measurements are approximate  disclaimer

  • Front
  • Front Door
  • Front House
  • Front Of House
  • Foyer
  • Foyer Door
  • Foyer Stairs
  • Living Rm
  • Living Room
  • Living Room Overview
  • Dining
  • Dining Rm
  • Dining Room
  • Dining - Kitchen
  • Kitch
  • Kitch Overview
  • Kitchen
  • Kitchen Counter
  • Kitchen Overview
  • Powder Room
  • Staircase
  • Stairs
  • Stairs Landing
  • Primary Bedrm
  • Primary Bedroom
  • Bedroom A
  • Bedroom A Flooring
  • Bedroom B
  • Bathroom
  • Laundry
  • Laundry Room
  • Back Patio
  • Backyard Patio
  • Lower Level Layout
  • Main Level Layout
  • Upper Level Layout









Venturehomes.ca

Terms Of Use Agreement - Disclaimer
01748