85-11 Harrisford Street, Hamilton       Townhouse    3    1.5   
 

Artist Rendition






   New Listing      
        Linda J Wu , Sales Representative
HomeLife Professionals Realty Inc.


Linda J Wu 
Sales Representative
905-574-6400 |

HomeLife Professionals Realty Inc.
1632 Upper James Street | Hamilton




85-11 Harrisford Street, Hamilton

    Townhouse    3    1.5

Above Grade Square Footage: 1350 sqft (125.42m²)

Main Level
Powder Room 6'4 x 2'10 (1.93m x 0.86m)
Dining Room 10'7 x 13'11 (3.23m x 4.24m)
Kitchen 8' x 17'4 (2.44m x 5.28m)
Living Room 17'4 x 11'5 (5.28m x 3.48m)

Upper Level
Bedroom 15'4 x 11'9 (4.67m x 3.58m)
Bedroom 10'9 x 8'5 (3.28m x 2.57m)
Bedroom 14'4 x 8'8 (4.37m x 2.64m)
Bathroom 8'6 x 5'11 (2.59m x 1.80m)

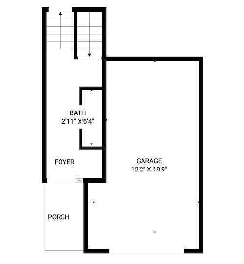
Lower Level
Rec Room 16'5 x 10'2 (5.00m x 3.10m)
Laundry 10' x 7'1 (3.05m x 2.16m)
Garage* 19'9 x 12'2 (6.02m x 3.71m)
* All measurements are approximate  disclaimer

  • Front
  • Front Garage
  • Front View
  • Foyer
  • Living Room
  • Living Room Overview
  • Living Room View
  • Dining Room
  • Dining Room View
  • Kitchen
  • Kitchen Overview
  • Kitchen View
  • Open To Below
  • Open to Below
  • Powder
  • Bedroom A
  • Bedroom B
  • Bedroom B View
  • Bedroom C
  • Bedroom C View
  • Bath
  • Rec Room
  • Rec Room Staged
  • Rec Room View
  • Laundry
  • Back
  • Back Patio
  • Back Patio View
  • Back View
  • Layout

85-11 Harrisford Street, Hamilton



Venturehomes.ca

Terms Of Use Agreement - Disclaimer
00019