3271 Rainham Road, Nanticoke       Bungalow    3    1   
 

Artist Rendition



   New Listing      
        Sheri Wilson, Realtor
Royal LePage Macro Realty


Sheri Wilson
Realtor
905 574 3038 |

Royal LePage Macro Realty
2247 Rymal Rd. | Stoney Creek




3271 Rainham Road, Nanticoke

    Bungalow    3    1

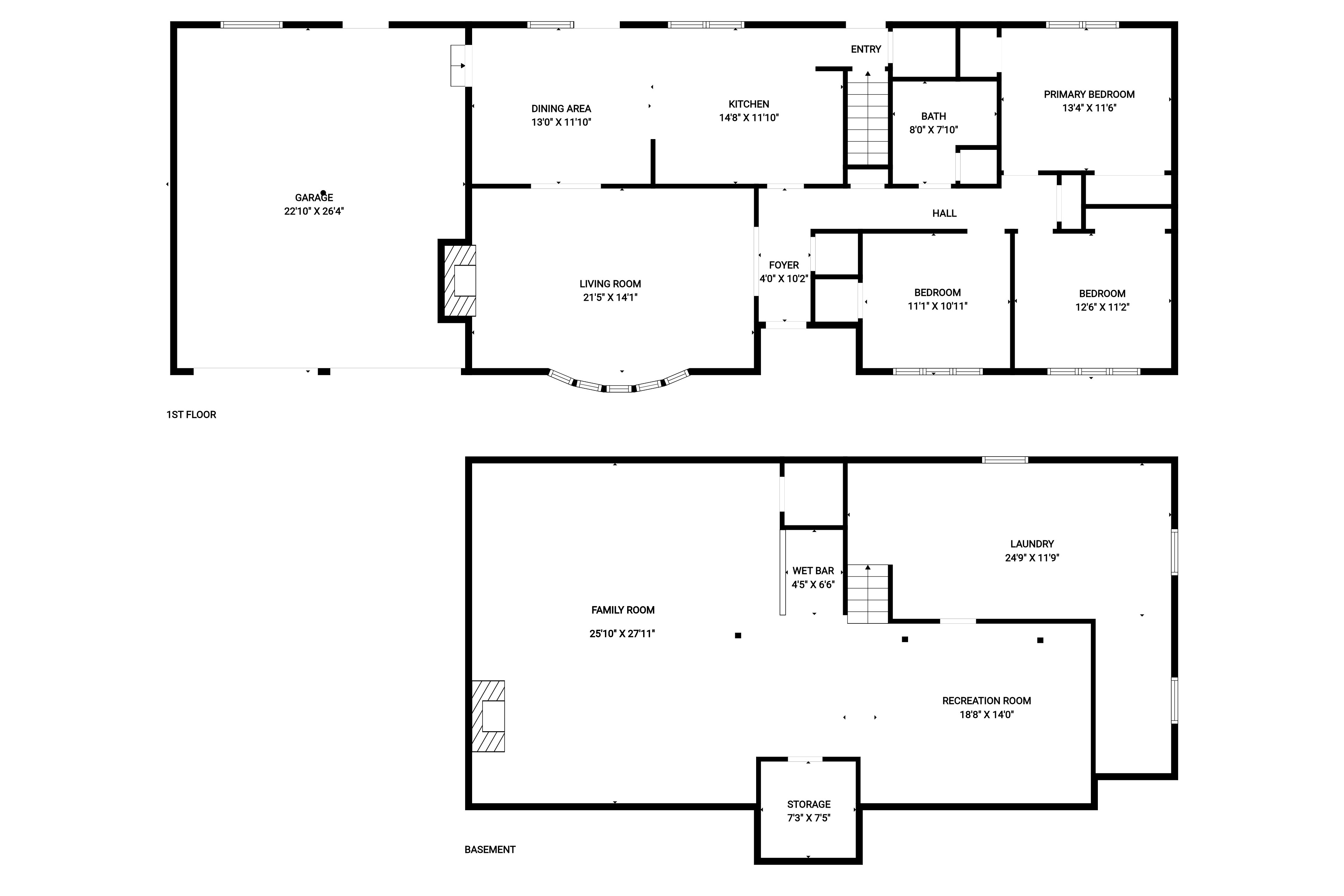
Above Grade Square Footage: 1567 sqft (145.57m²)
Below Grade Finished Space: 1196 sqft (111.11m²)

Main Level
Living Room 14'1 x 21'5 (4.29m x 6.53m)
Dining Room 13' x 11'11 (3.96m x 3.63m)
Kitchen 14'8 x 11'10 (4.47m x 3.61m)
Bedroom 13'4 x 10'6 (4.06m x 3.20m)
Bedroom 12'6 x 11' (3.81m x 3.35m)
Bedroom 10'11 x 11'1 (3.33m x 3.38m)
Bathroom 7'1 x 7'9 (2.16m x 2.36m)

Lower Level
Rec Room 18'8 x 14' (5.69m x 4.27m)
Family Room 25'10 x 27'11 (7.87m x 8.51m)
Laundry 24'8 x 11'9 (7.52m x 3.58m)
* All measurements are approximate  disclaimer

  • Front
  • Front Aerial
  • Front Early-Twilight VT
  • Front Overview
  • Foyer
  • Living Room
  • Living Room Fireplace
  • Living Room Overview
  • Living Room View
  • Dining Room
  • Dining Room Overview
  • Dining Room View
  • Kitchen
  • Kitchen Overview
  • Kitchen View
  • Bedroom A
  • Bedroom B
  • Bedroom C
  • Bath
  • Family Room
  • Family Room Bar
  • Family Room Overview
  • Family Room View
  • Rec Room
  • Laundry
  • Back Shop
  • Back Early-Twilight VT
  • Back
  • Back Aerial
  • Back Aerial  ()
  • Back Aerial Overview
  • Back Aerial View
  • Back Deck
  • Back Deck View
  • Back View
  • Back Yard
  • Layout

3271 Rainham Road, Nanticoke



Venturehomes.ca

Terms Of Use Agreement - Disclaimer
00020