353 Inman Road, Dunnville       Bungalow    2 + 1    1   
 

Artist Rendition



   New Listing      
        Mark Vandervelde
Royal Lepage


Mark Vandervelde
905 957 5000 |

Royal Lepage
107 Griffin St. S. | Smithville




353 Inman Road, Dunnville

    Bungalow    2 + 1    1
  • Front
  • Front Aerial
  • Front Aerial View
  • Front Driveway
  • Front Overview
  • Front Porch
  • Front View
  • Front View ()
  • Front Virtual Twilight
  • Living Room
  • Living Room Overview
  • Living Room View
  • Dining Room
  • Dining Room View
  • Kitchen
  • Kitchen Overview
  • Kitchen View
  • Bedroom A
  • Bedroom A View
  • Bedroom B
  • Bedroom B View
  • Bath
  • Bath View
  • Mud Room
  • Lower Bedroom View
  • Laundry
  • Lower Bedroom
  • Shop  ()
  • Shop
  • Back
  • Back Aerial
  • Back View
  • Back Yard
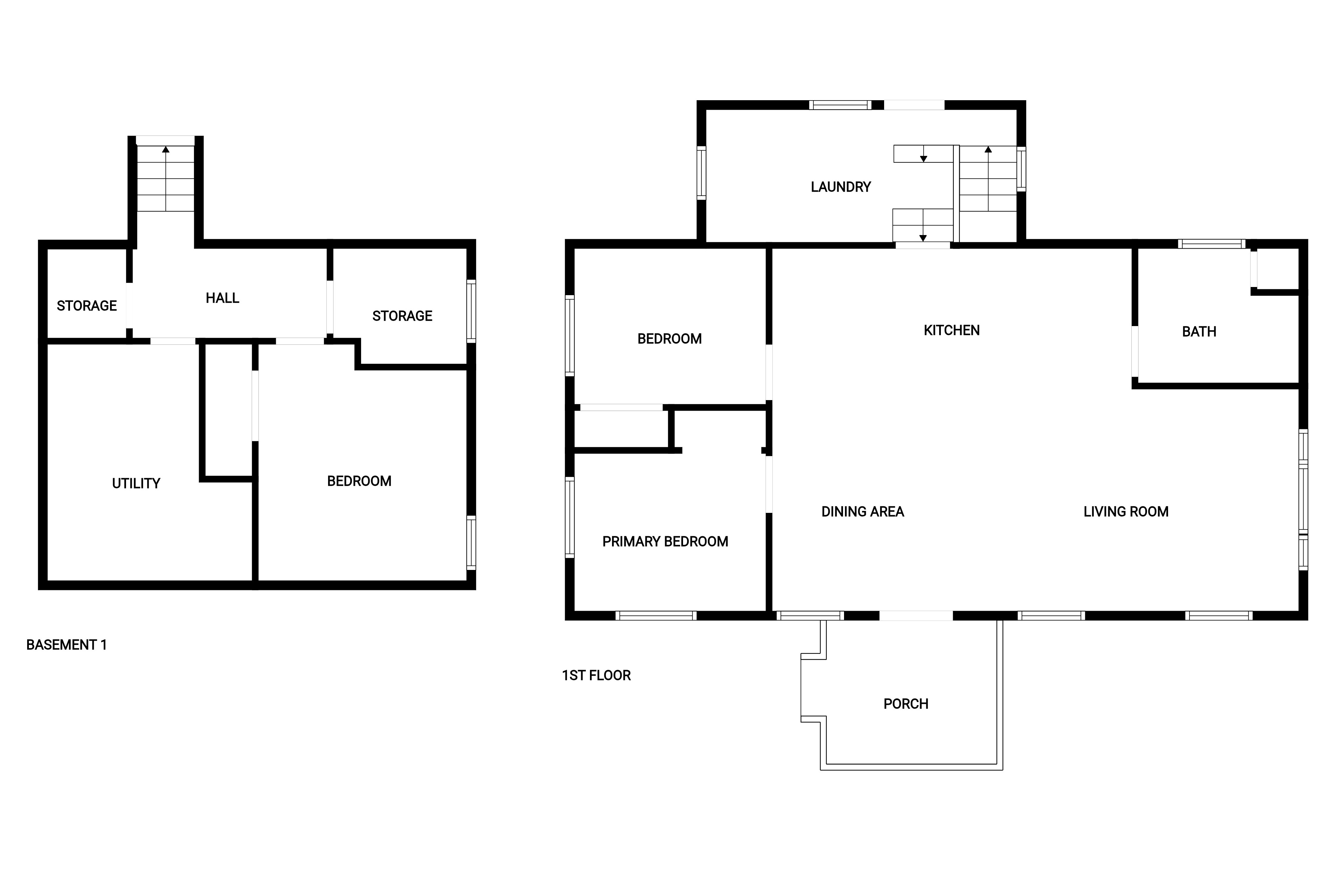
  • Layout

353 Inman Road, Dunnville



Venturehomes.ca

Terms Of Use Agreement - Disclaimer


00007