#203-2075 Walker's Line, Burlington       2    1 + 1   
 

Artist Rendition



   New Listing      
        Joanne Ardron, Salesperson
One Percent Realty Ltd.


Joanne Ardron
Salesperson
905 467-3535 |

One Percent Realty Ltd.
177 West 23rd Street | Hamilton




#203-2075 Walker's Line, Burlington

    2    1 + 1

Above Grade Square Footage: 1315(122.16m²)

Main Level
Living/Dining Room 22'5 x 15'2 (6.83m x 4.62m)
Kitchen 20'3 x 8'4 (6.17m x 2.54m)
2 Piece Bathroom 6'5 x 3'1 (1.96m x 0.94m)
Utility 5'1 x 3 (1.55m x 0.91m)

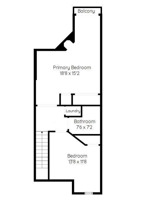
Upper Level
Primary Bedroom 18'8 x 15'2 (5.69m x 4.62m)
4 Piece Bathroom 7'6 x 7'2 (2.29m x 2.18m)
Bedroom 13'8 x 11'8 (4.17m x 3.56m)
Laundry 2'6 x 2'3 (0.76m x 0.69m)

Other
Back Deck 15'2 x 7 (4.62m x 2.13m)
Garage 18'5 x 9'3 (5.61m x 2.82m)
Storage 14'5 x 13'10 (4.39m x 4.22m)
* All measurements are approximate  disclaimer

  • Front
  • Front Overview
  • Front View
  • Front Walkway
  • Foyer
  • Living Room
  • Living Room Fireplace
  • Living Room Overview
  • Living Room Patio Door
  • Living Room Skylight
  • Living Room View
  • Living Room View In
  • Dining Room
  • Dining Room View
  • Kitchen
  • Kitchen Counter
  • Kitchen Dinette
  • Kitchen Dinette Overview
  • Kitchen Overview
  • Kitchen View
  • Kitchen View Out
  • Kitchen Window
  • Powder Room
  • Upper Landing
  • Primary Bedroom
  • Primary Bedroom Balcony
  • Primary Bedroom Balcony View
  • Primary Bedroom Overview
  • Primary Bedroom View
  • Bedroom A
  • Bedroom A Window
  • Bathroom
  • Bathroom Shower
  • Bathroom Vanity
  • Complex Sign Direction
  • Complex Sign
  • DSC_-
  • Laundry
  • Garage
  • Back Deck
  • Back Deck View
  • Back Deck View Out
  • Main Level Layout
  • Upper Level Layout

#203-2075 Walker's Line, Burlington



Venturehomes.ca

Terms Of Use Agreement - Disclaimer
00024